Cheap Property for Sale
6,953 properties below €50,000 in 85 countries
 See all Properties  See all Properties

Building land in Vrdnik

  
  
  
  
  

€ 1,000

£872.53
$1,152.50

Building land in Vrdnik

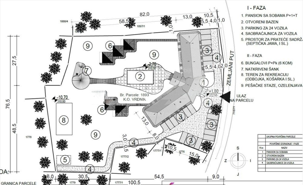
The plot, with an area of ​​6308 square meters, is located in the heart of the Fruske Gora National Park at an altitude of 360 m.
It is allowed to build a residential-business building with floors P+3+PK based on information about the location received from the environmental protection and urban planning service
The permitted plot occupancy index is basically 50 percent of the lot size, which means that approx. 12,000 square meters of residential and commercial space can be built.
Panorama Star DOO, a company owned by me, has a conceptual project of a 1200 square meter guesthouse; bungalows, swimming pool and outdoor bar - 850 square meters.
Urban technical conditions have been obtained for the conceptual design of this complex.
A thermal water well was drilled on the plot up to 405 m, where thermal water was found, approx. 32 degrees. The well is not completed.
We have all the necessary permits regarding the construction project and the thermal water well.
Additional information at https://banemilosavljev.wixsite.com/panoramastar
Contact: +38163514984

Site

Property ID: 77792

For:
Sale
Size of land:
6308 m²

Serbia

Irig

Address:
Vrdnik
Vrdnik

Contact me about this property for sale

Private Seller
Please solve the captcha.