Cheap Property for Sale
6,069 properties below €50,000 in 79 countries
 Back to Search Results  Back to Search Results

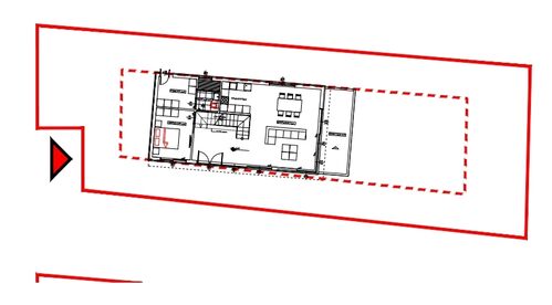
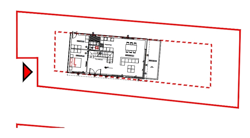
Building land 480 m2 with plans to build 190 m2 Modern House

  
  
  
  

€ 41,000

£35,932.40
$48,281.60

Building land 480 m2 with plans to build 190 m2 Modern House

I am happy to offer you this Building land 480 m2 with plans to build
190 m2 Modern House on 2 floor garden and parking Sea view in Varna
Modern vision, excellent performance with non-standard design,
beautiful garden, parking lots and favorable exposure - these are the
advantages of the new house you can even put a pool in the garden,
which we present to you in Izgrev quarter of Varna city

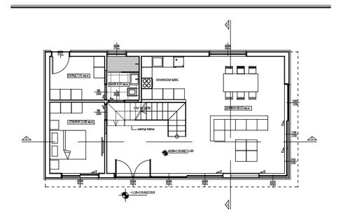
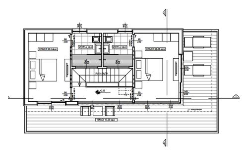
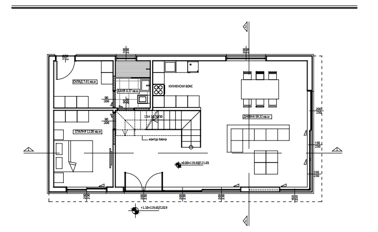
The distribution of the property is as follows:

First floor - spacious entrance hall, closet, bathroom and toilet,
storage, wonderfully bright and high living room with French windows
overlooking the porch; laundry room Second floor - two bedrooms, both
with en-suite shower and toilet, private bathroom on the floor,
laundry room. with French windows overlooking the balcony and a view
over Varna Amazing building land and ready project for a modern house
of 190sqm. in Izgrev quarter - Varna city.

Road access, electricity, water, and main drains next to the plot.

With Seaview.

Price 41,000 euros
Can be done on Pay Monthly

Site

Property ID: 49697

For:
Sale
Size of land:
480 m²

Bulgaria

Varna

Address:
varna
varna

Contact me about this property for sale

Bulgaria Property Finder Ltd
Zack Qureshi
Phone: 07988744886

see all properties for sale from Zack Qureshi

Please solve the captcha.